Nöfer Architekten
Dove 05

Spree One

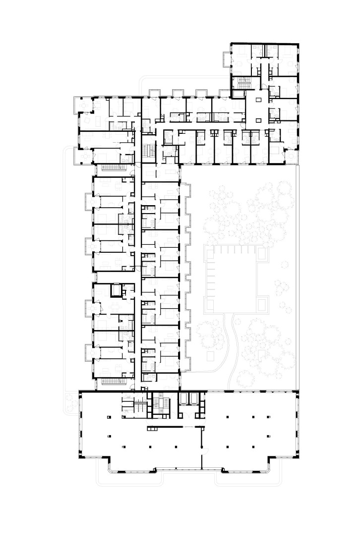
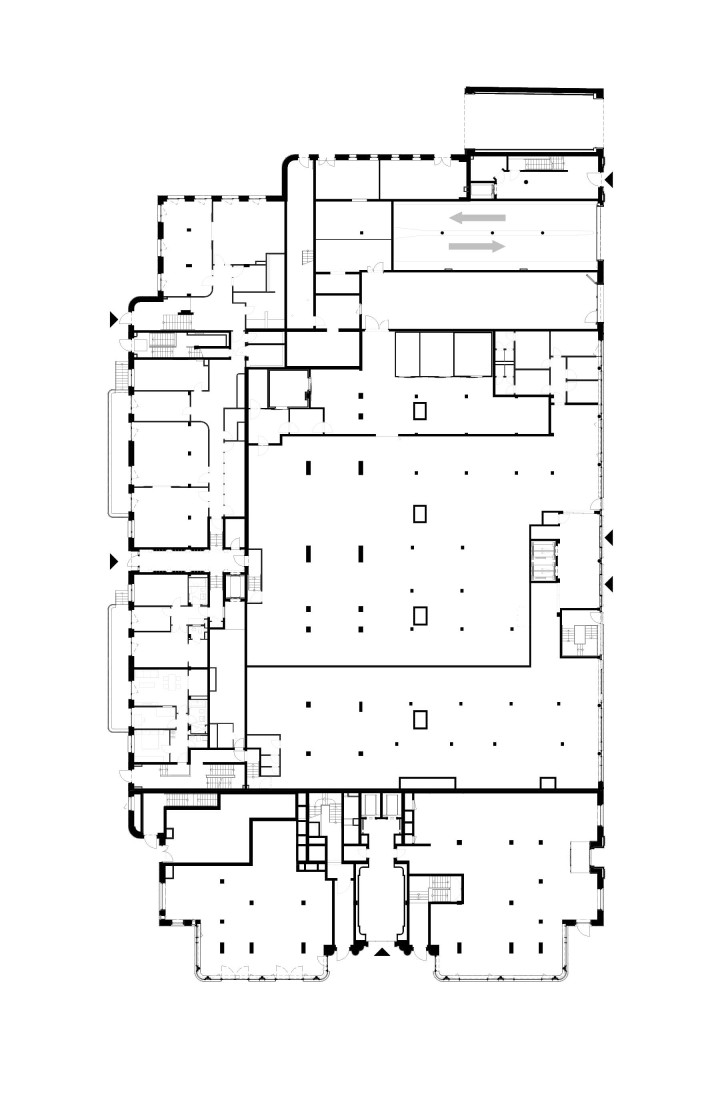
The SPREE ONE project is sited where the Spree River and the Landwehr Canal meet in the northern part of Berlin’s district of Charlottenburg. Comprising 220 private apartments, office and retail space as well as a children’s day care centre, the new building replaces its 1960s predecessor, which uses the entirety of the site. The meandering shape of the new architecture opens up the site and redefines the surrounding urban space: A ten-storey section along Landwehr Canal closes the gap between the Spreeresidenzen ensemble and the administrative building across the road to the east. To the west, a garden will replace the dilapidated multi-storey car park. Another garden will be planted on the roof of the east-facing retail spaces along Dovestrasse. Bands of yellow brick alternating with rendered string courses accentuate the facades horizontal articulation. Projecting balconies enhance the architecture’s gestural expression. The main facade of the new building is set back from the street and aligned with Cauerstrasse, which is only 650 metres long. This gives Cauerstrasse a visually satisfying termination while at the same time “borrowing” it to provide the new building with a generous approach.

Client

Optima Center Charlottenburg
Quintas mbH & Co.KG

Project phase

HOAI 1 - 5, Artistic management

Time frame

2014 - 2018

GFA

21,000 sqm

Budget

>120 million EUR

Site

Dovestrasse 1, 3 und 5
10578 Berlin

Copyright

Maximilian Meisse | Florian Seelig |
Optima-Aegidius-Firmengruppe | Noefer Architekten

Dove 05
Dove 04
Dove 01
Dove neu 9 200327
Dove 02
Dove neu 4 200327
Dove neu 1 190912
Dove neu 10 200327
Dove neu 1 200327 v2
Dove neu 5 200327
Dove neu 2 200327
Dove neu 2 190912
Dovestrasse 20200515 016 web v2
0346 DoveStr Innenansicht 02
0346 DoveStr Innenansicht 01
0346 DoveStr Innenansicht 03
Dove neu 6 200327
0346 DoveStr Innenansicht 04
Dove neu 7 200327
Dove neu 8 200327
Dovestrasse 20200706 011 web
Dovestrasse 20200706 041 web
Dove neu 6 190912
Dove neu 7 190912 v2
0341 Heydt 1 01