Marchwitzastrasse 20230110 01 web v2

Marchwitzastraße 33

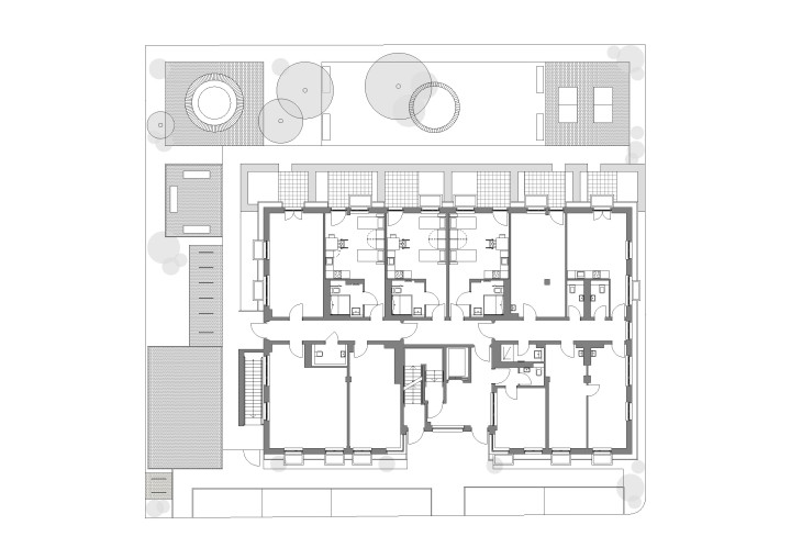
Nachverdichtung ist ein probates Mittel, um den Wachstumsdruck Berlins zu bewältigen - so stehen auch die verhältnismäßig luftigen Großsiedlungen der DDR-Moderne unter einem starken Veränderungsdruck. An der Marchwitzastraße inmitten von über 50 Jahre alten Wohnzeilen entstehen in der Nachbarschaft nicht nur neue Wohnhochhäuser und ein Supermarkt, sondern auch eine soziale Einrichtung für Menschen in besonderen sozialen Notlagen. Wir zählen es zu unseren nobelsten Aufgaben, diesen Menschen im Rahmen der finanziellen Möglichkeiten des Bauherrn einen Zufluchtsort mit einer würdigen Architektur zu gestalten. Das achtgeschossige Wohnhaus ist wegen der sehr unterschiedlichen Aufenthaltsdauer der Bewohner bauordnungsrechtlich eine Beherbergungsstätte und wird rund um die Uhr betreut. Die vielen kleinen Apartments sind zum Teil koppelbar, um ggf. auch Familien aufnehmen zu können. Gemeinschaftsküchen, Aufenthalts- und Hobbyräume sollen den Betroffenen eine geborgene Wohnsituation in einer persönlichen sozialen Notlage bieten.

Entwickler

KIM. - Kilian Immobiliengruppe

Kilian Projektmanagement Berlin GmbH

 

Auftraggeber

Berlinovo Marchwitzastraße GmbH

Leistungsphasen

LP 1-5, Künstlerische Oberleitung

Zeitraum

2021 - 2023

BGF

3.700 qm

Standort

Marchwitzastraße 33, 12681 Berlin-Marzahn

Bildrechte

Maximilian Meisse

Marchwitzastrasse 20230110 01 bearbeitet web v2
Marchwitzastrasse 20230110 05 web
Marchwitzastrasse 05
Marchwitzastrasse 12
Marchwitzastrasse 13
Marchwitzastrasse 14
Marchwitzastrasse 06
Marchwitzastrasse 07
Marchwitzastrasse 08
Marchwitzastrasse 09
Marchwitzastrasse 11
703 Grundriss EG ohne Rand I 1 200 v3
Dortmunder 02